Eladó lakás Pécs 22 000 000 Ft

Leírás

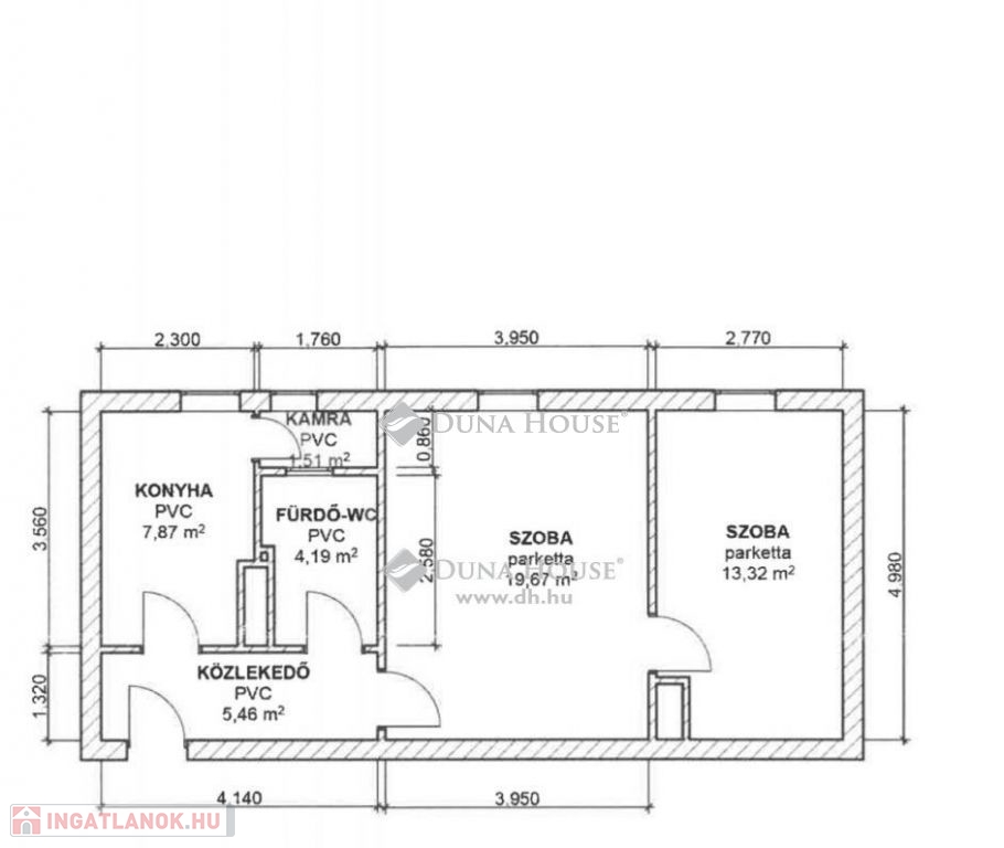
Pécsen, a Pákolitz István utcában, csendes, nyugodtt környezetben, a Szabolcsfalui leágazónál eladásra kínálok egy 52M2-es lakást, új műanyag nyílászárókkal, rendezett lépcsőházzal. A lépcsőház külső vakolata, frissen felújított, nyílászárók cserélve lettek. Tökéletes lehetőség fiataloknak, időseknek, gyermekeseknek egyaránt. Az ingatlan azonnal költözhető.Kérdés esetén keressen bizalommal!

22000000 Ft

Referencia szám: LK073245-NOK

Lakás részletei

Ár: 22 000 000 Ft
Méret: 52 négyzetméter
Azonosító: 11574170
Irodai azonosító: LK073245-5068115
Emelet: 2. emelet
Építőanyag: Tégla
Fűtés jellege: Konvektoros
Ingatlan állapota: Átlagos
Építési év: 50 évesnél régebbi
Egész szobák: 2

Térkép